Skip to content
0326 441 21 00 – – 0326 441 39 02|info@belen.bel.tr
FacebookInstagramTwitterYouTube
Belen Belediyesi Resmi İnternet Sitesi Logo Belen Belediyesi Resmi İnternet Sitesi Logo Belen Belediyesi Resmi İnternet Sitesi Logo
  • Anasayfa
  • Kurumsal
    • Başkan
    • Başkan’a Mesaj
    • Başkan’dan Mesaj
    • Misyon ve Vizyonumuz
    • Başkan Yardımcıları
    • Meclis Üyeleri
    • Birim Müdürleri
  • Projelerimiz
    • Biten Projeler
    • Devam Eden Projeler
    • Planlanan Projeler
  • Hizmetlerimiz
    • Emlak İşlemleri
    • Zabıta – İşyeri İşlemleri
    • İnsan Kaynakları İşlemleri
    • Nikah İşlemleri
    • İmar ve Şehircilik İşlemleri
    • Kültür İşlemleri
    • İhaleler
  • Güncel
    • Haberler
    • Duyurular
    • Videolar
    • Medyada Belen
  • E-Belediye
    • Online İşlemler
    • Paydaş Kurumlar
    • Belediye Web Uygulaması
  • Belen
    • Tarihi
    • Ulaşım
    • Nüfus Bilgileri
    • Ekonomik Durumu
    • Coğrafyası
    • Bitki Örtüsü
    • Tarihi Kültürel Yapılarımız
      • Şehitler Abidesi
      • Kanuni Sultan Süleyman – Belen Merkez Camii
      • Bakras Kalesi
      • Abdurrahman Paşa Türbesi
      • St. Meryem Ana Katolik Kilise ve Manastırı
      • HAN – KANUNİ SULTAN SÜLEYMAN BELEN KERVANSARAYI
      • BAKRAS KÖPRÜSÜ
    • Kuş Gözlem Merkezi
  • KVKK
  • İletişim

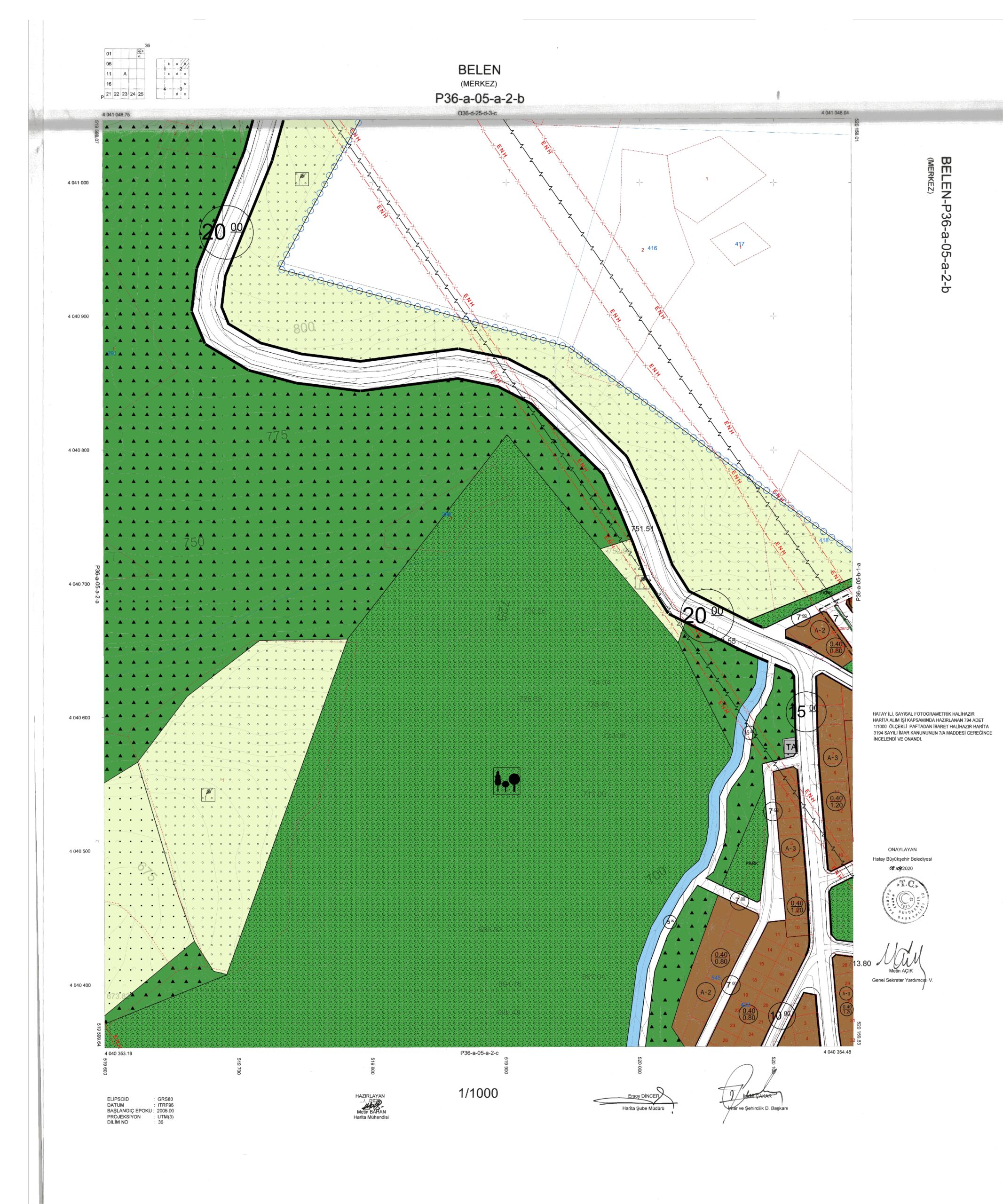
Hatay İli, Belen İlçesi, Halilbey Mahallesinde bulunan 420 ada 12 numaralı parseldeki yolun yeniden planlanmasına yönelik 1/1000 ölçekli Uygulama İmar Planı Değişikliği

Ana Sayfa→Duyurular→Hatay İli, Belen İlçesi, Halilbey Mahallesinde bulunan 420 ada 12 numaralı parseldeki yolun yeniden planlanmasına yönelik 1/1000 ölçekli Uygulama İmar Planı Değişikliği
Hatay İli, Belen İlçesi, Halilbey Mahallesinde bulunan 420 ada 12 numaralı parseldeki yolun yeniden planlanmasına yönelik 1/1000 ölçekli Uygulama İmar Planı Değişikliği

belenbasin2023-09-06T15:30:46+03:005 Eylül 2023|

Paylaş

FacebookTwitterRedditLinkedInWhatsAppPinterestVkE-posta

İlişkili Yazılar

  • Aileyle Köklenen, Nüfusla Güçlenen, İstikbale Yükselen Türkiye. Hikayemiz Yarım Kalmayacak.
    Aileyle Köklenen, Nüfusla Güçlenen, İstikbale Yükselen Türkiye. Hikayemiz Yarım Kalmayacak.

    Aileyle Köklenen, Nüfusla Güçlenen, İstikbale Yükselen Türkiye. Hikayemiz Yarım Kalmayacak.

  • Müftüler Mahallesi Kadastro Güncelleme Çalışmaları Bilgilendirme İlanı

    Müftüler Mahallesi Kadastro Güncelleme Çalışmaları Bilgilendirme İlanı

  • TAŞINMAZIN ELEKTRONİK SATIŞ ORTAMINDA AÇIK ARTIRMA İLANI

    TAŞINMAZIN ELEKTRONİK SATIŞ ORTAMINDA AÇIK ARTIRMA İLANI

  • İhale İlanı (Orman Parkı)

    İhale İlanı (Orman Parkı)

  • 2026 Yılı Anız Yangınlarının Önlenmesi ile İlgili Esas Ve Usuller Hakkında Valilik Tebliği

    2026 Yılı Anız Yangınlarının Önlenmesi ile İlgili Esas Ve Usuller Hakkında Valilik Tebliği

  • Mayıs ayı olağan meclis toplantı duyurusu…

    Mayıs ayı olağan meclis toplantı duyurusu…

Siz de fikrinizi belirtin Cevabı iptal et

İbrahim GÜL
Belediye Başkanı

Sosyal Medya

Son Yazılar

  • Aileyle Köklenen, Nüfusla Güçlenen, İstikbale Yükselen Türkiye. Hikayemiz Yarım Kalmayacak.
  • Müftüler Mahallesi Kadastro Güncelleme Çalışmaları Bilgilendirme İlanı
  • TAŞINMAZIN ELEKTRONİK SATIŞ ORTAMINDA AÇIK ARTIRMA İLANI
  • İhale İlanı (Orman Parkı)
  • 2026 Yılı Anız Yangınlarının Önlenmesi ile İlgili Esas Ve Usuller Hakkında Valilik Tebliği

HIZLI MENÜ

  • Anasayfa
  • Bize Ulaşın
  • Dilek ve İstekler
  • Ziyaretçi Defteri
  • KVKK

İLETİŞİM

  • Muhlisali Mah. Kurtuluş Cad. No:68 Hatay / BELEN
  • 0326 441 21 00
  • info@belen.bel.tr

YENİ HABERLER

  • Aileyle Köklenen, Nüfusla Güçlenen, İstikbale Yükselen Türkiye. Hikayemiz Yarım Kalmayacak.
  • Müftüler Mahallesi Kadastro Güncelleme Çalışmaları Bilgilendirme İlanı
  • TAŞINMAZIN ELEKTRONİK SATIŞ ORTAMINDA AÇIK ARTIRMA İLANI
  • İhale İlanı (Orman Parkı)
© Copyright 2023 | Belen Belediyesi | Tüm Hakları Saklıdır | Badex
FacebookInstagramTwitterYouTube
Page load link
Deneyimlerinizi geliştirmek, kişiselleştirmek ve daha iyi hizmet sunabilmek için çerezleri kullanmaktayız. Çerezler hakkında detaylı bilgi almak için Çerez Politika’mızı incelemenizi rica ederiz. Çerezleri Kabul Et
Go to Top